<< VorherigesNächstes >>

N1-Neubau RH/DHH

Angebots-Nr. : N1

So oft haben sich unsere Kunden dieses Angebot angesehen: 1792

Ausstattung :

  • Luft-/Wasser-Wärmepumpe
  • KfW 40
  • offene Küche
  • Speisekammer
  • Stellplatz
  • Balkon/Terrasse
  • Dachterrasse
  • Keller
  • gehoben
  • Neubau
  • projektiert
  • Bad mit Dusche
  • Bad mit Fenster
  • Bad mit Wanne
  • Gäste-WC
  • Dach ausbaufähig

Finanzielle Informationen :

Erwerbspreis Kontaktieren Sie uns

Details :

Zustand der Immobilie neuwertig
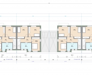
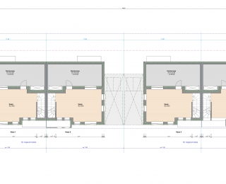
Wohnfläche ca. 147 m²
Zimmer 6
Stockwerke 3
Bäder 1
Toiletten 2

Für unser Bauprojekt suchen wir aktuell ein passendes Grundstück in Wiesloch, Walldorf, Leimen, Sandhausen, Malsch, Rauenberg mit mindestens 800m² Fläche.

Objektbeschreibung

Wir erstellen Ihr neues Zuhause komplett.
Ob Keller, Bodenbeläge, Malerarbeiten...
Alles ist inklusiv.
Und wenn Sie eigene Vorstellungen verwirklichen möchten... Sie hätten gerne ein zweites Bad, oder eine kleine Galerie im Dachgeschoß, eine zusätzliche Dusche im Gäste-WC?
Wir setzen Ihre Ideen gerne um.

Ausstattung

Ausschnitt aus der Bau- und Leistungsbeschreibung:

(...)
- Energiesparhaus
- Fußbodenheizung in allen Wohnräumen
- Fenster 5-Kammerprofil, 3-fach Isolierverglasung
- Gas, Brennwerttechnik, Solaranlage für die Brauchwassererwärmung
- Luft-Wasser-Wärmepumpe
- Echtholzparkett
- Elektrische Rollläden für alle Wohnraumelemente
- Großzügige Terrasse
- Zweiholm-Treppe in Stahl-/Holz-Konstruktion
- Alle Wand- und Bodenfliesen enthalten
- Alle Maler- und Tapezierarbeiten enthalten
- TV-, Telefon- und Internetanschlüsse in allen Wohnräumen
- Bäder + Gäste WC mit Fenster
- Alle Innenwände massiv
- Alu-Haupteingangstür mit 5-fach Verriegelung
- Waschraum, 3 Kellerräume im Kellergeschoss
- Stellplatz (Garage optional)
- Wäscheschacht (optional)
- Zentrale Staubsaugeranlage (optional)

Förderung KfW / Finanzierung

Wohneigentumsprogramm 124, Wohneigentumsprogramm 153

Wir bieten Ihnen selbstverständlich einen unverbindlichen Beratungsservice an. Wir prüfen die notwendigen Unterlagen, kalkulieren die Finanzierbarkeit, regeln die notwendigen Abläufe, rechnen für Sie unterschiedliche Finanzierungsmodelle durch und stellen, wenn Sie möchten, für Sie ein entscheidungsfähiges Paket für die Bank zusammen.

Ich habe Interesse an Ihrem Angebot

Zurück zur Liste